Hofstatt München, Meili, Peter Architekten, Sendlinger Straße, Süddeutsche Zeitung, ehemaliges Redaktionsgebäude, Umnutzung

Bild 19/30

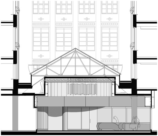
Schnitt Passage