Hochschulerweiterung in Potsdam von me di um Architekten
Bild 27/30
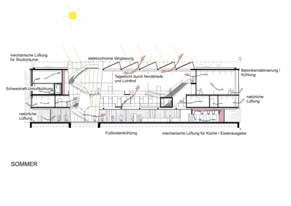
Energiekonzept Sommer
Bild: Transsolar