Hochschulerweiterung in Potsdam von me di um Architekten
Bild 24/30
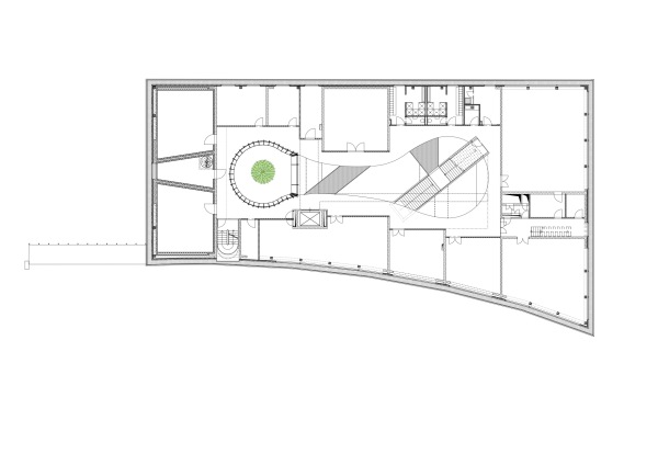
Grundriss 2.OG
Bild: me di um Architekten