Hochschule in Valladolid von Estudio González Arquitectos
Bild 32/37
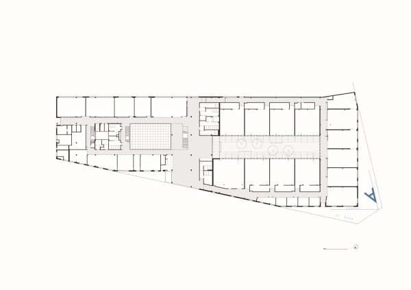
Grundriss EG
Bild: Estudio González Arquitectos