Hochschule bei Paris von Vallet de Martinis Architectes
Bild 32/37
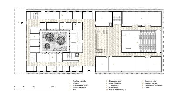
Grundriss Erdgeschoss
Bild: Vallet de Martinis Architectes