Henning Larsen, David Adjaye oder Sauerbruch Hutton
Bild 24/53
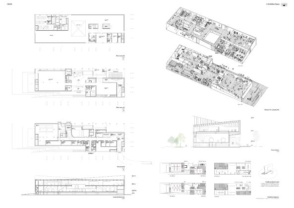
Henning Larsen Architects mit MARK arhitekti
Bild: Henning Larsen Architects mit MARK arhitekti