Die Meldung in Bildern
Selbst der Steg ist smart
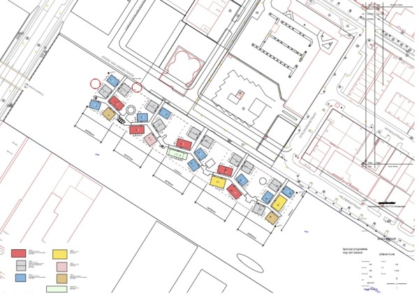
Hausbootsiedlung in Amsterdam von Space & Matter
Bild 40/43
Lageplan
Bild: Space & Matter