JHW IROJE Architects, Südkorea, Hyo-won Jung, Wohnen, Materialien, Natur

Bild 32/60

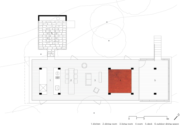
Yeoyeodang, Glashaus mit Wohnbereich und Küche