Guillermo Vázquez Consuegra planen Meeresmuseum in Triest
Bild 14/24
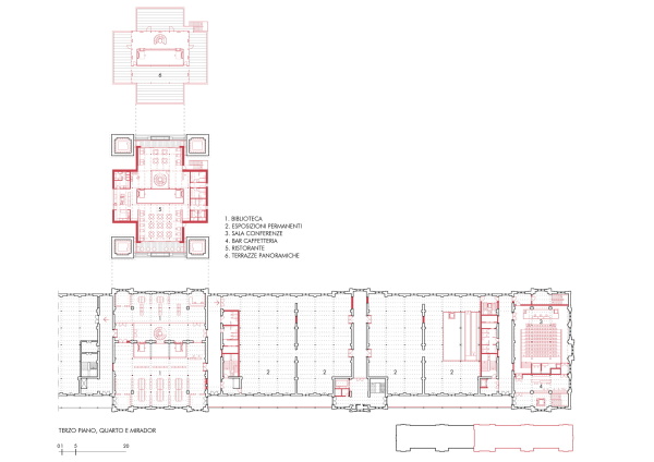
Grundriss 3. OG
Bild: Guillermo Vázquez Consuegra