Die Meldung in Bildern
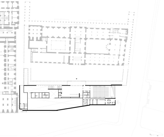
Chipperfields James-Simon-Galerie
Grundsteinlegung in Berlin
Bild 8/14
Grundriss Ebene 1
Bild: David Chipperfield Architects