Die Meldung in Bildern
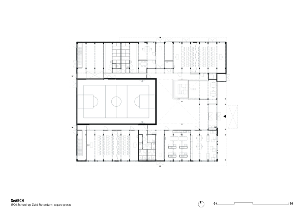
Holzmodul in Rotterdam
Grundschule von SeARCH
Bild 21/26
Bild: SeARCH