Die Meldung in Bildern
Klassenhäuschen und Marktplatz
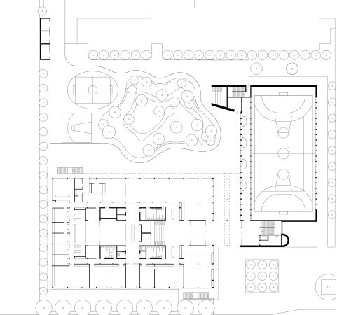
Grundschule in Mannheim von LRO
Bild 14/16
Grundriss EG
Bild: LRO