Die Meldung in Bildern
Raum zum Entdecken und Lernen
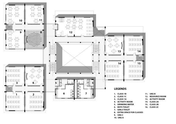
Grundschule in Indien von sga-studio
Bild 29/36
1. Geschoss
Bild: SGA-studio