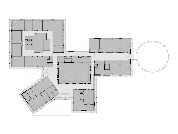
Baunetz, Meldungen, Architektur, Projekte, Belgien, Knokke-Heist, NL Architects, Basisschool De Vonk, Scholencampus De Vonk De Pluim, Schulgebäude, primary school, Passiefschool, Passivschule, canadian well, Vulkan, Vorbau, Vollwärmeschutz, green roof, Marcel van der Burg

Bild 34/41

Bild: NL Architects