Die Meldung in Bildern
Im schwarzen Gewand
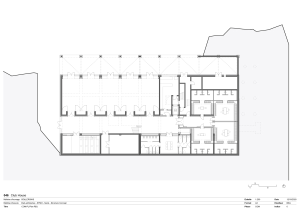
Golf-Clubhaus im Elsass von DeA architectes
Bild 16/22
Grundriss Gartenebene
Bild: DeA Architectes