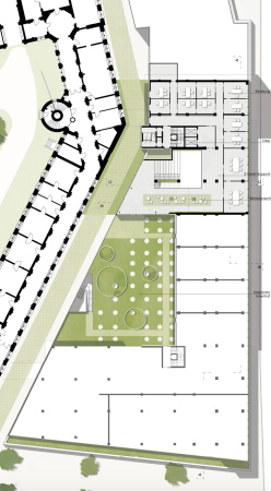
2. Preis: RKW Architektur + (Düsseldorf), Grundriss 1. Obergeschoss

Bild 20/37

2. Preis: RKW Architektur + (Düsseldorf), Grundriss 1. Obergeschoss

Bild: RKW Architektur +