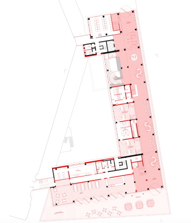
1. Preis: Giesler Architekten (Braunschweig/Berlin), Grundriss 2. Obergeschoss

Bild 10/37

1. Preis: Giesler Architekten (Braunschweig/Berlin), Grundriss 2. Obergeschoss

Bild: Giesler Architekten