Die Meldung in Bildern
Produktive Stadt ab 6,50 Euro
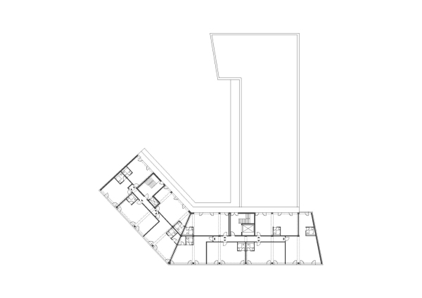
Gewerbehof von coido architects in Hamburg
Bild 17/21
Grundriss 3. Obergeschoss
Bild: coido