Die Meldung in Bildern
Vernakulär in der Provence
Gesundheitszentrum von Combas Architectes
Bild 32/33
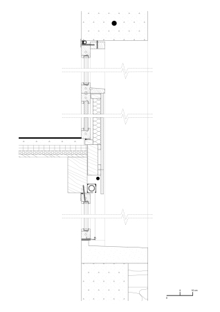
Konstruktionsdetail
Bild: Combas Architectes