Gesundheitszentrum, Cartaya, Südspanien, CHS Arquitectos, Sevilla, Erweiterung

Bild 19/20

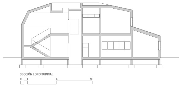
Längsschnitt