Die Meldung in Bildern
Terrasse Commune und Jokerzimmer
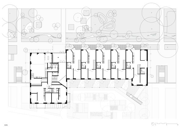
Geschosswohnen von Studio DIA in Bern
Bild 26/31
Grundriss Erdgeschoss
Bild: Studio DIA