Die Meldung in Bildern
Transformation hinterm Vorhang
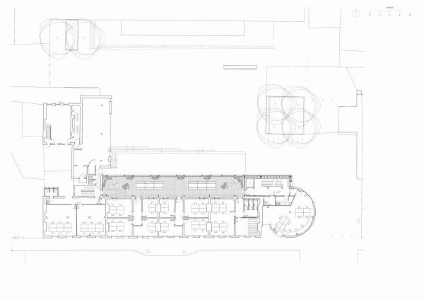
Geschäftshaus von [Y/N] Studio in London
Bild 23/30
Grundriss 1. Obergeschoss
Bild: [Y/N] Studio