Die Meldung in Bildern
Geschlossene Gesellschaft in Zürich
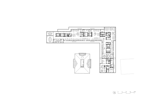
Geschäftshaus und Villenumbau von Gigon/Guyer
Bild 22/25
Grundriss 4. Obergeschoss
Bild: Gigon/Guyer