marble, oak, historical reference, supreme court, Den Haag, KAAN architects, basis, glass panels, latticework, judges, atrium, Lichthof, Richter, Gerichtspersonal, getrennte, Erschließungsweg, funktionale Trennung, Lobby, historische Referenz, Gerichtshof, Marmor, Glas, Gitter, Gitterfassade, Helen Verohoeven

Bild 27/30

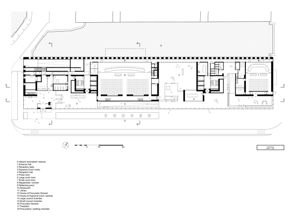
Erdgeschoss

Bild: KAAN architecten