Die Meldung in Bildern
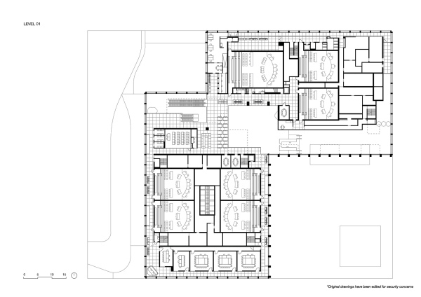
Zwischen Diskretion und Offenheit
Gerichtsgebäude in Amsterdam von KAAN Architecten
Bild 36/52
Bild: KAAN Architecten