Geowissenschaften, geo, Frankreich, Meteo, IGN, dachbegrünung, geothermie, vorfertigung, fassade, module, fassadenmodule, mudulfassade, energie, energiekonzept, nationales, geografisches, institut, patrick mauger, mauger, Saint-Mandé, france

Bild 19/21

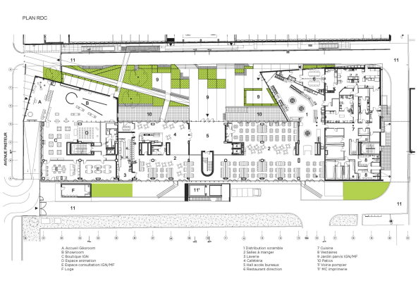
Grundriss Erdgeschoss

Bild: Architecture Patrick Mauger