Die Meldung in Bildern
Evergreen
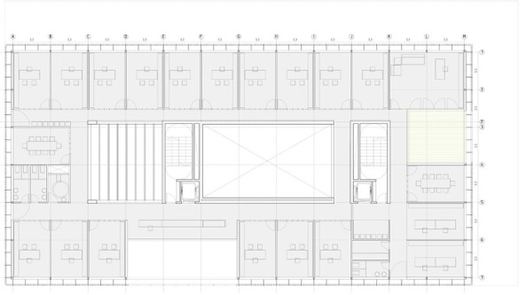
Gemeinschaftszentrum in Madrid
Bild 16/28
Bild: dosmasunoarquitectos (Madrid)