Die Meldung in Bildern
Zwischen Schnellstraßen und Autobahnen
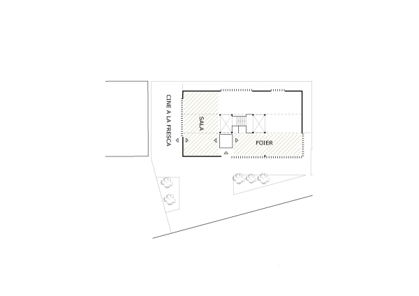
Gemeinschaftszentrum in Barcelona von Haz Arquitectura
Bild 18/20
Bild: Haz Arquitectura