Die Meldung in Bildern
Beton-Kollektiv
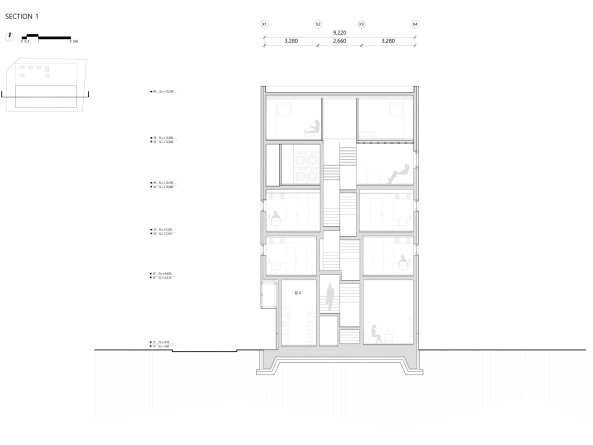
Gemeinschaftswohnen in Seoul von JYA
Bild 24/31