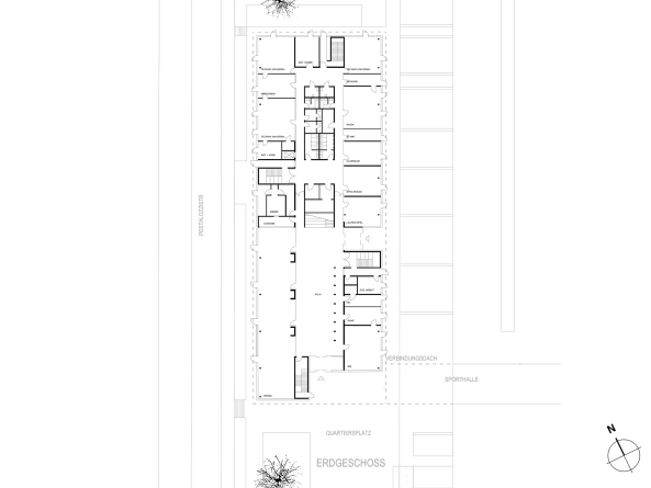
Gemeinschaftsschule in Konstanz von Broghammer Jana Wohlleber

Bild 7/18

Bild: Broghammer Jana Wohlleber Architekten