Die Meldung in Bildern
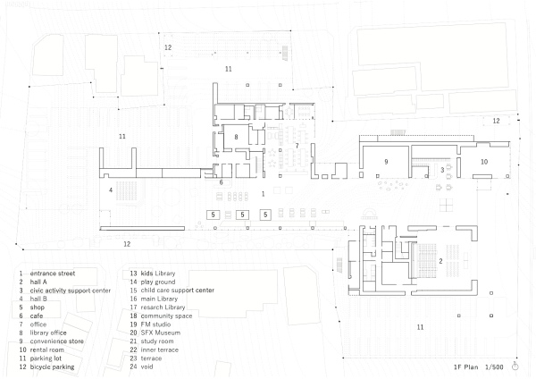
Megastruktur in Fukushima
Gemeindezentrum von Unemori
Bild 29/41