Die Meldung in Bildern
Altjapanischer Luxus
Gästehaus in Kyoto von td-atelier
Bild 10/13
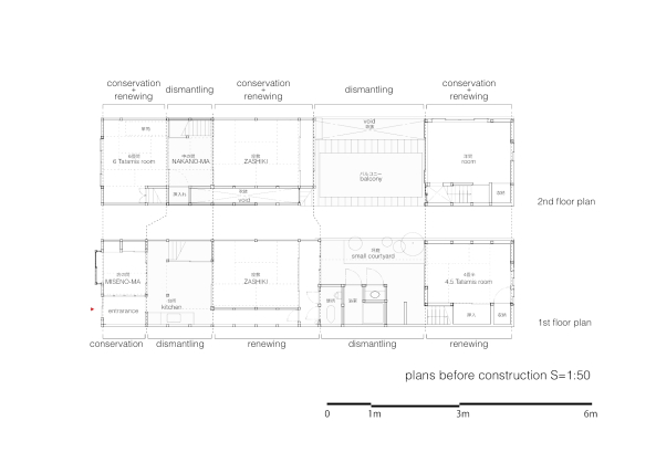
Grundriss vor dem Umbau