Gästehaus bei San Francisco von Mork-Ulnes Architects
Bild 16/19
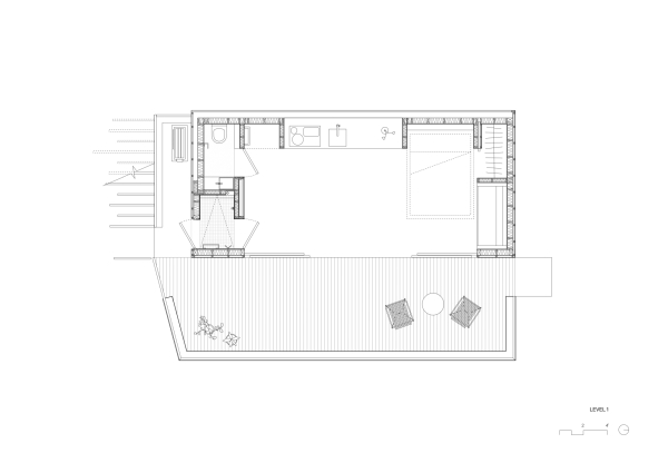
Grundriss Erdgeschoss
Bild: Mork-Ulnes Architects