GFC Architecture planen Wohnanlage bei Paris
Bild 14/18
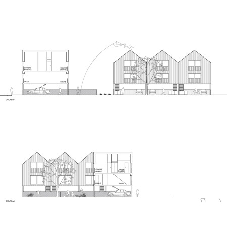
Schnitt, quer
Bild: Andrea Guazzieri / GFC Architecture