Fußballakademie in Rotterdam von MoederscheimMoonen
Bild 28/32
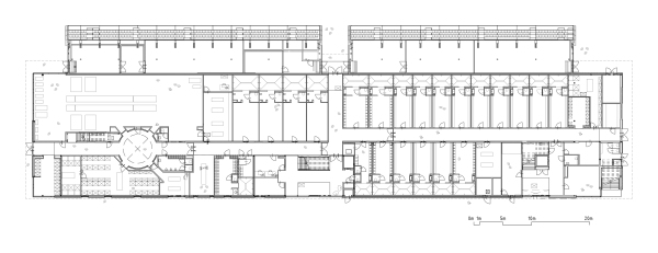
Grundriss Erdgeschoss
Bild: MoederscheimMoonen Architects