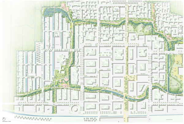
Freiraumplanerischer Wettbewerb für Oberbillwerder entschieden
Bild 16/33
2. Preis: RMP Stephan Lenzen Landschaftsarchitekten (Bonn)
Bild: RMP