Die Meldung in Bildern
Wohnen in Buenos Aires
Fosters erstes Projekt in Lateinamerika
Bild 14/16
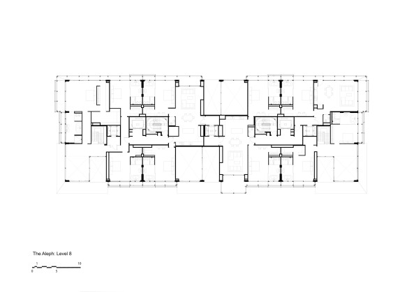
Grundriss 8. Ebene