Die Meldung in Bildern
Wohnen in Buenos Aires
Fosters erstes Projekt in Lateinamerika
Bild 12/16
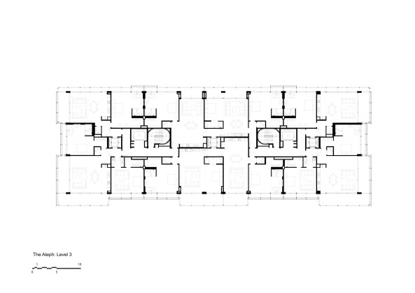
Grundriss 3. Ebene