Die Meldung in Bildern
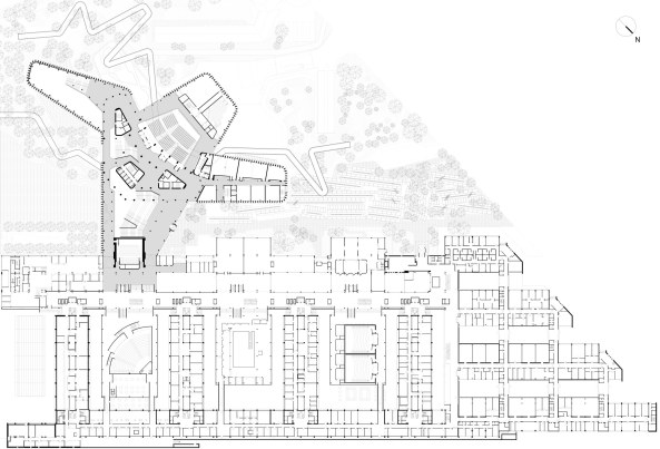
Pionier im Kupferkleid
Forschungsgebäude in Kopenhagen von C.F. Møller
Bild 42/45