Die Meldung in Bildern
Signalgebäude und Mineralsockel
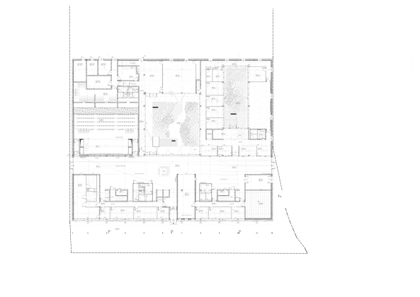
Forschungsbau von Block Architectes bei Paris
Bild 22/25