Flexibles Stadthaus von StudioVlayStreeruwitz
Bild 26/28
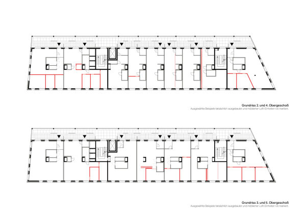
Grundrisse weitere Obergeschosse
Bild: StudioVlayStreeruwitz