Die Meldung in Bildern
Vom Feld zum Dach
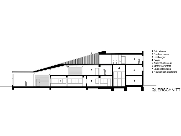
Firmenzentrale in Mainz von Schoyerer Architekten_Syra
Bild 29/32
Bild: Schoyerer Architekten