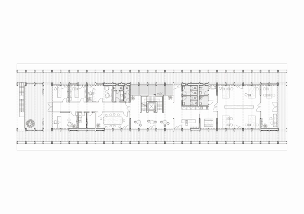
Firmensitz von Mjölk architekti in Brumov-Bylnice
Bild 29/32
Grundriss Obergeschoss
Bild: Mjölk architekti