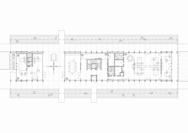
Firmensitz von Mjölk architekti in Brumov-Bylnice
Bild 27/32
Grundriss Erdgeschoss
Bild: Mjölk architekti