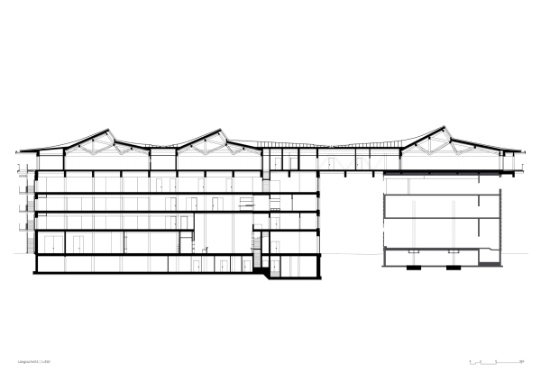
Firmensitz in Ibach von Meili, Peter & Partner
Bild 22/28
Längsschnitt
Bild: Meili, Peter und Partner