Die Meldung in Bildern
880 Motoren für die Nachhaltigkeit
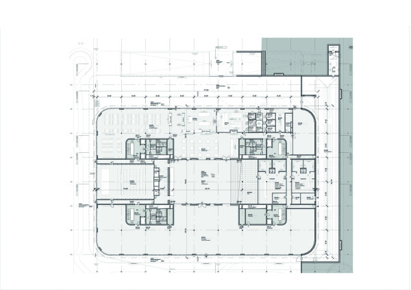
Firmensitz bei Fribourg von IttenBrechbühl
Bild 20/25
EG 0
Bild: IttenBrechbühl