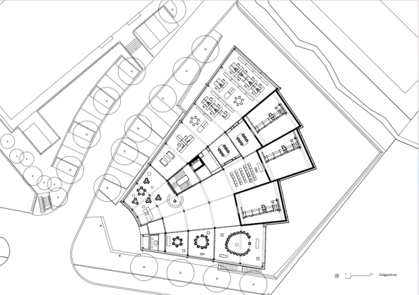
Die Meldung in Bildern
Aluminium zwischen Kirschbäumen
Firmensitz bei Basel von Christ + Gantenbein
Bild 10/15