Firmenerweiterung in Ernstbrunn von juri troy architects
Bild 26/28
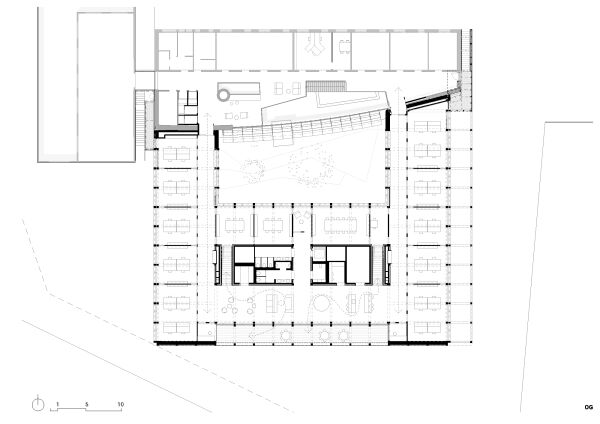
Grundriss Obergeschoss
Bild: juri troy architects