Die Meldung in Bildern
Günstig Wohnen in Beton
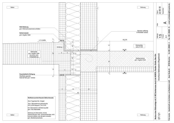
Fink + Jocher in Neu-Ulm
Bild 17/19
Regeldetail eines Balkonanschlusses
Bild: Fink + Jocher