Feuerwehr in Dresden von Peter Zirkel Architekten
Bild 15/19
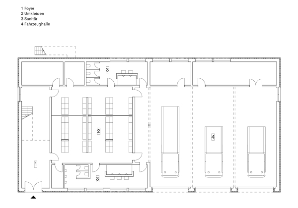
Grundriss Erdgeschoss
Bild: Peter Zirkel Architekten